Technische Gebäudeausrüstung vom Experten in Braunschweig
Nur mit einer leistungsfähigen technischen Infrastruktur können öffentliche Gebäude wirtschaftlich und gleichzeitig nachhaltig betrieben werden. Anlagen in den Bereichen Gas, Wasser, Wärme und Raumluft, Mess-, Steuer- und Regelungsanlagen sowie Brandmelde- und Löschanlagen müssen so geplant und konzipiert werden, dass sie den hohen Ansprüchen von Bauherren, Betreibern und Nutzern gleichermaßen gerecht werden.
Wenn es um die technische Gebäudeausrüstung geht, sollten Sie daher von Beginn an einen Fachmann zurate ziehen. Die Ingenieurbüro Gierke Planungsgesellschaft mbH in Braunschweig unterstützt Sie bei der Planung der Gebäudetechnik und der Entwicklung entsprechender Konzepte, die für die Betreibung von Liegenschaften unabdingbar sind. Dabei kombinieren wir konventionelle Techniken mit alternativen Energieträgern. Auch bei der Anlagen- und Systemoptimierung können Sie sich auf unsere Expertise verlassen.
Kurzum: Wir sind in jeder Phase Ihres Projekts der zuverlässige Partner an Ihrer Seite.
Planung und Überwachung der Gebäudetechnik in Neubau und Bestand
Herausforderungen wie die Verknappung der Rohstoffe und die damit verbundenen steigenden Preise spielen im Rahmen der technischen Gebäudeausrüstung eine tragende Rolle. Auch der Umweltschutz hat einen immer größer werdenden Einfluss. Es gilt nicht nur, Gebäude komfortabel und kostengünstig, sondern auch besonders ressourcen- und klimaschonend zu betreiben. An diesem Punkt setzt eine effektive Beratung und Planung durch unser Ingenieurbüro an.
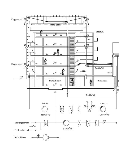
Wir entwickeln und planen intelligente Energie- und Versorgungskonzepte für Bauwerke wie Verwaltungsgebäude, Banken, Rechenzentren, Industriebauten, Labor- und Forschungsgebäude, Museen, Theater, Bibliotheken und Einkaufszentren. → Hier kommen Sie direkt zu unseren Referenzen.
Beratung rund um erneuerbare Energien
Alternative Energieträger können bei der technischen Gebäudeausrüstung vielfältig eingesetzt und teilweise sogar vom Bund gefördert werden. Anwendungsbeispiele sind Wärmepumpen, Heizungsanlagen, Anlagen zur Gewinnung regenerativer Energien wie Photovoltaik- und Solaranlagen sowie die Regenwassernutzung. Selbstverständlich beachten wir bei der Planung alle Anforderungen und aktuell gültige Rechtsnormen. Im Rahmen der Energieberatung erläutern wir Ihnen alles Weitere. Auch die Erstellung eines Energieausweises ist Teil unserer Leistungen. Mithilfe detaillierter Bestands- und Bedarfsanalysen können mögliche Risiken schon vorab minimiert werden. Anschließend kümmern wir uns als Bauleiter / Projektmanager um einen reibungslosen Ablauf aller Maßnahmen, die getroffen werden.
Sie haben Fragen zu unseren Leistungen? Dann kontaktieren Sie uns einfach. Bestimmt findet unser zuverlässiges und dynamisches Team aus Braunschweig auch für Ihre Anfrage eine professionelle Lösung. Sie erreichen uns über das Kontaktformular oder telefonisch unter 0531 238 21 0.
